Gå til: Plantegninger | Fasade | Kontaktskjema
215 – VEGSUND
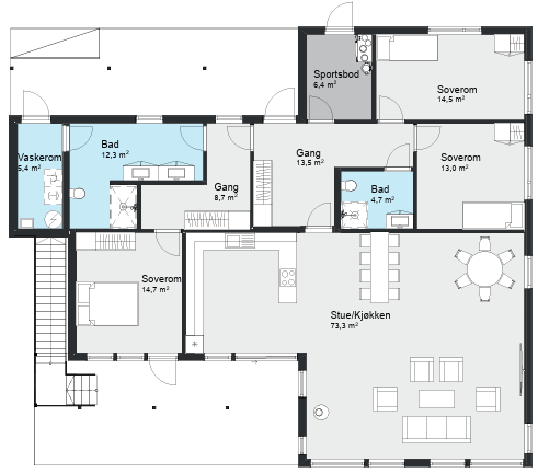
BOLIG MED SÆRPREG
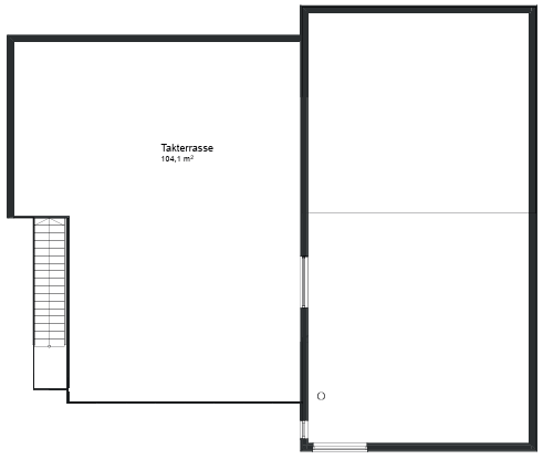
Vegsund har en arkitektur som fanger blikket – med sin utradisjonelle utforming og store takterrasse er dette en bolig som skiller seg ut. Her får du alle nødvendige funksjoner på ett plan, med tre store soverom, to bad og romslig oppbevaringsplass.
Den åpne stue- og kjøkkenløsningen på over 70 m² gir en flott arena for alt fra hverdag til fest, med direkte utgang til uteområder og takterrasse. Dette gir mulighet for mange ulike soner – enten du vil nyte ettermiddagssol, samle venner, eller bare trekke deg litt tilbake.
Vegsund passer for deg som vil ha noe unikt, og som verdsetter både god planløsning og arkitektonisk særpreg.
TEKNISK DATA
ØNSKER DU MER INFORMASJON?
FYLL UT SKJEMAET, SÅ KONTAKTER VI DEG FOR EN HYGGELIG BOLIGPRAT
ARKITEKT
ALT KAN TILPASSES FOR Å IMØTEKOMME DERES ØNSKER OG BEHOV
Fordelene med å bygge et helt nytt hus, er at du kan få det akkurat slik som du vil. Trolig finner du en husmodell i vår katalog som kan passe, men kanskje ønsker du å tilpasse boligen etter egne ønsker og behov.
Vi vil gjøre vårt ytterste for at du skal bi fornøyd, og hjelper deg hele veien fra idé til ferdig bolig. Vi har fagkunnskap og gir gode råd for at du skal få bygget en bolig som passer deg helt perfekt.








