• Byggmann

228 – SCALA

MODERNE OG STILREN

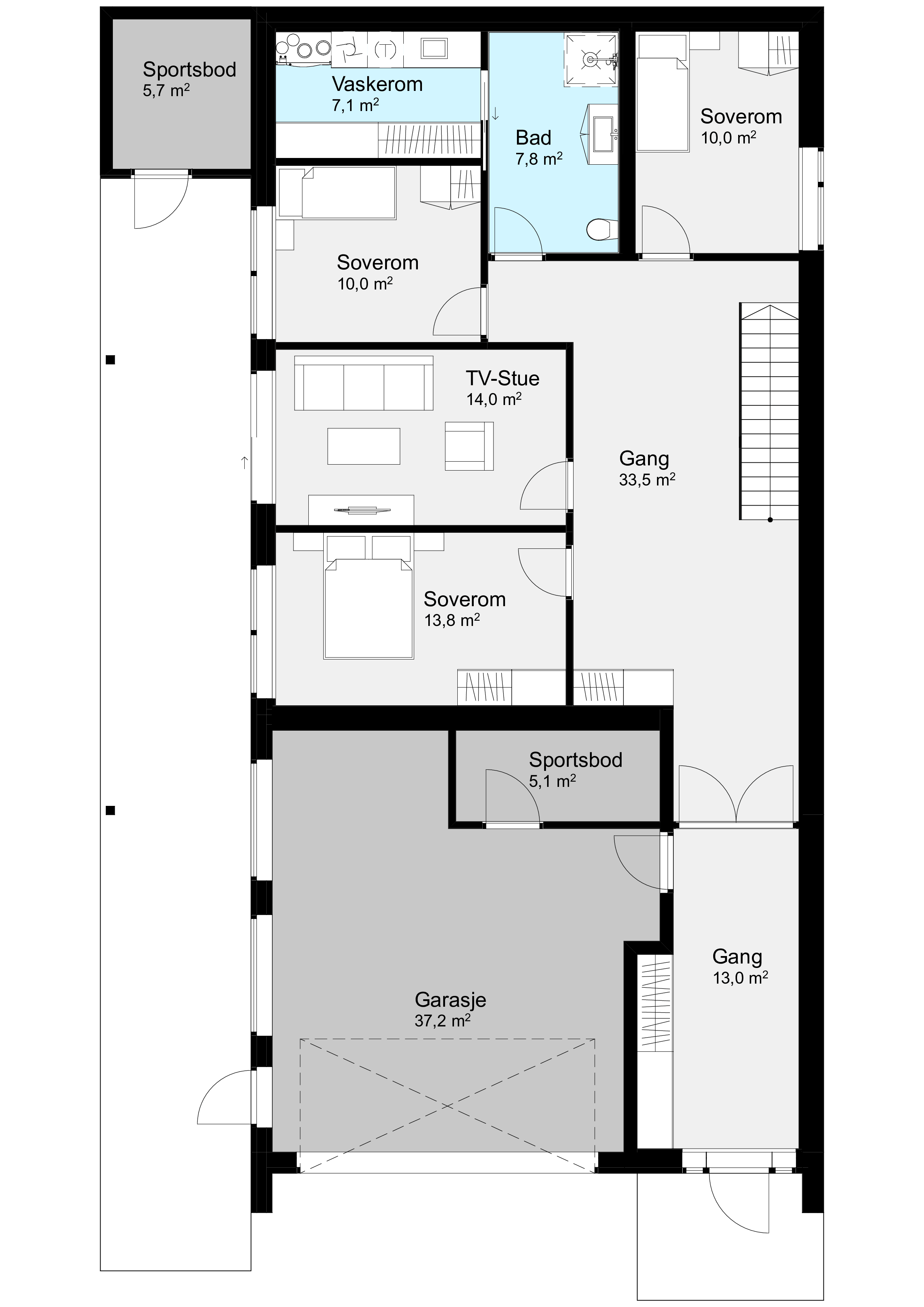
Scala er en stilren og moderne enebolig, med smarte løsninger og godt med plass. Første etasje har tre soverom, bad med tilknytning til vaskerom, og en egen TV-stue – perfekt for lek, gaming eller avslapning.

Andre etasje byr på hovedsoverom med walk-in garderobe og eget bad, samt en stor, åpen stue- og kjøkkenløsning på hele 50 m². Herfra har du direkte utgang til uteområdet, noe som gjør det enkelt å ta middagen eller kaffekoppen ut i frisk luft.

Med integrert garasje og sportsbod får du alt samlet – praktisk, oversiktlig og gjennomført.

TEKNISK DATA

Bruksareal: 271,8 m²
Bebygd areal: 224,9 m²
Største lengde: 20,3 m
Største bredde: 12,0 m
Antall soverom: 4-5
Energimerking: Oransje - B

PLANTEGNINGER

1. ETASJE

2. ETASJE

FASADE

ØNSKER DU MER INFORMASJON?

FYLL UT SKJEMAET, SÅ KONTAKTER VI DEG FOR EN HYGGELIG BOLIGPRAT

    ARKITEKT

    ALT KAN TILPASSES FOR Å IMØTEKOMME DERES ØNSKER OG BEHOV

    Fordelene med å bygge et helt nytt hus, er at du kan få det akkurat slik som du vil. Trolig finner du en husmodell i vår katalog som kan passe, men kanskje ønsker du å tilpasse boligen etter egne ønsker og behov.

    Vi vil gjøre vårt ytterste for at du skal bi fornøyd, og hjelper deg hele veien fra idé til ferdig bolig. Vi har fagkunnskap og gir gode råd for at du skal få bygget en bolig som passer deg helt perfekt.

    Trykk her for lese mer om arkitekttjenester fra Byggmann.